2018-08-07 12:31
临江、近地铁!一波靓地来袭。
日前,广州市国规委对花都两大重点片区的控制性详细规划进行批前公告,分别是花都总部集聚综合配套区和广州北站地区大陵片区。
根据规划,以上两大片区都在原有规划的基础上,进行了深化优化。最明显的区别是两大片区都增加了大量的居住用地面积。
值得一提的是,这两个片区都位于新街河地区。花都区相关负责人曾表示,新街河周边地区是花都区“最好的地块”,也是花都接下来的重点发展区域。

花都总部集聚综合配套区(花都区CA1001、CA1003规划管理单元)
位于花都湖片区,东至迎宾大道,西至凤凰南路,北至荔枝基路,南至新街河,规划范围面积93.2公顷。
根据花都区第十四次党代会提出的“航空枢纽+”战略,该片区拟打造成为总部集聚区,以“宜居宜业、交通便捷、配套完善、景观优美”的为建设目标。

原规划示意图
从优化后的规划来看,该片区将由四大部分组成,分别为城市更新片区、商业商务片区、滨水居住用地、和保留现状片区。
城市更新居住片区:沿商业大道南北两侧,结合区政府初步村庄改造方案,进行城市更新远期控制。具体用地性质及指标待更新方案审批后确定,容积率暂按3.0控制。
商业商务片区:整合零散低效的村留用地规划商业商务片区,沿迎宾大道及围绕地铁站点共布局6处商业商务用地,容积率按3.5控制。
滨水居住用地:滨水居住地块落实新街河景观风貌及滨水控高要求,容积率按2.8控制。
现状拟保留片区(图中斜线部分):落实现状广大附中花都学校及住宅区等。

规划深化优化草案示意图
公共服务及市政设施方面,将增加街道级、居委级服务设施共28处,包括中小学、街道办事处及加油站等。
交通方面,该片区临近地铁9号线莲塘站。还将规划“两横两纵”骨架路网,路网密度9.6km/k㎡,新增4处社会停车场,1处公交首末站。
值得注意的是,片区内的田美村有6处传统风貌建筑,本次规划采取原址保护,周边建筑风格需与传统建筑协调。
同时为了形成临山向中部平缓抬高的梯级天际线,临新街河及马鞍山一线的建筑控高为45m,建筑面宽占比控制在50%以下。
规划调整后,该片区规划总建筑面积增加至163.5万平,居住人口也从0.9万人增加至3.5万人。

深化优化先后指标对比表
目前,该片区附近在售的项目有碧桂园·星港国际(商用),57-80平商办单位报价1.75万元/㎡。
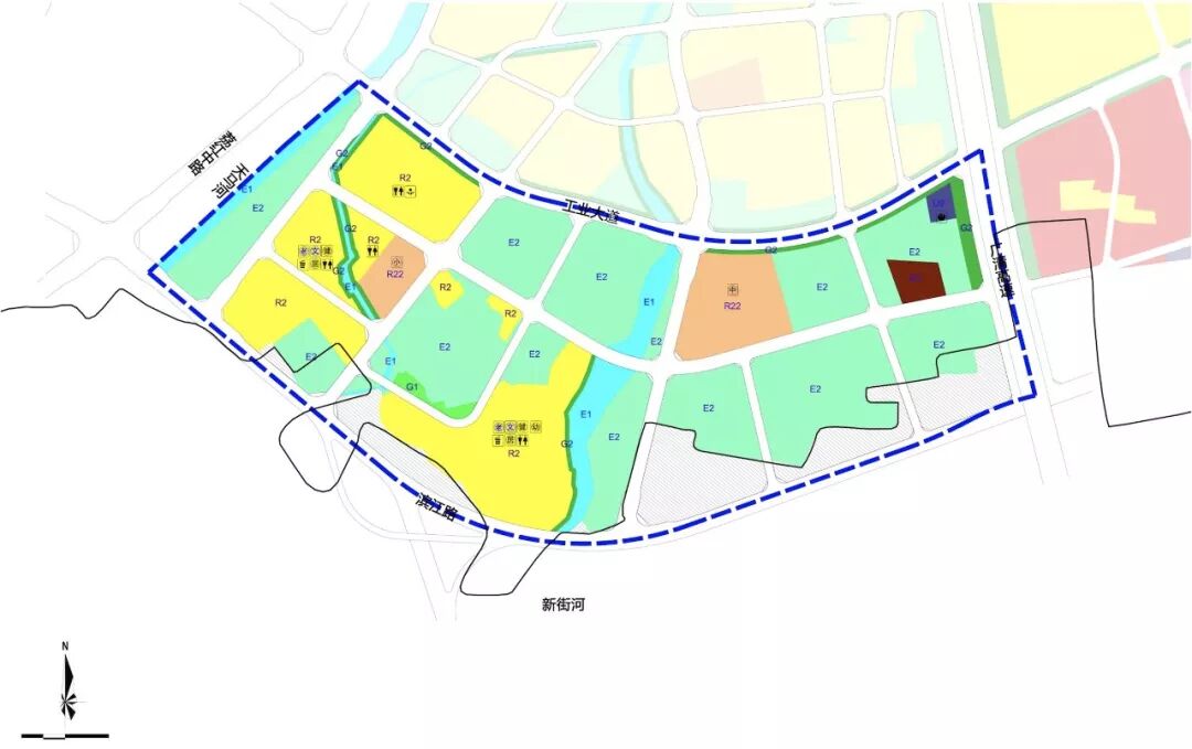
广州北站地区大陵片区(花都区CB0603-CB0605规划管理单元)
位于花都区新华街,广清高速以西、新街河以北、天马河以东、工业大道以南。规划范围面积122.5公顷。

原规划示意图
根据优化后的规划,该片区沿新街河、天马河及中部绿廊布置居住用地,容积率为2.5-3.2;
东北部集中布局布局商业用地,形成科创、产业服务等功能联动的综合发展片区,作为留用地集中统筹区。其中,商业用地容积率3.0,商业商务设施用地容积率3.5。
规划范围南部为白云区部分,根据现状使用情况保留为农林用地。

规划深化优化草案示意图
公共服务及市政设施方面,共规划63处街道级、居委级公服设施及22处市政设施,包括中小学、肉菜市场、变电站及消防站等。
交通方面,规划“三横三纵”的骨架路网,路网密度12.35km/k㎡,规划两处公共停车场,2处公交首末站。
规划调整后,总建筑面积至少增加至109.31公顷,而人口也将由1.71万人增加至3.06万人。

深化优化先后指标对比表
来源|广州房产
题图|视觉中国
责编|詹青